Overview : An interior project for a HK operated Belgian Beer Bar in the TaiKooLi Mall in Chengdu.
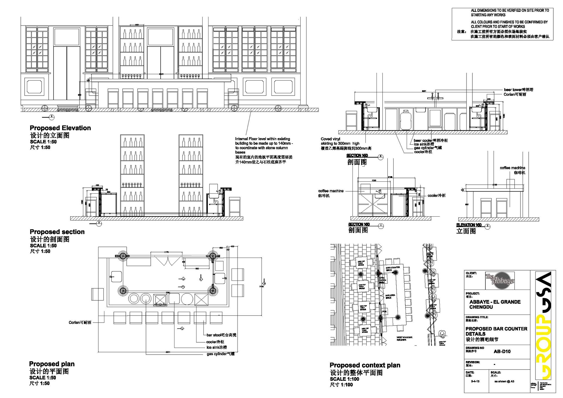
Design: The design for the bar was heavily influenced by its location in a historical building, the old mess hall for the monks of the temple, around which the mall is planned. All the existing features of the historic were to be maintained whilst minimal interventions were planned, including a small kitchen to the corner of the courtyard, and a new bar with bi folding doors opening out into the mall courtyard.
Role: Fast Track Concept and detail design, tender coordination and management and limited number of visits to site in Chengdu during construction.









