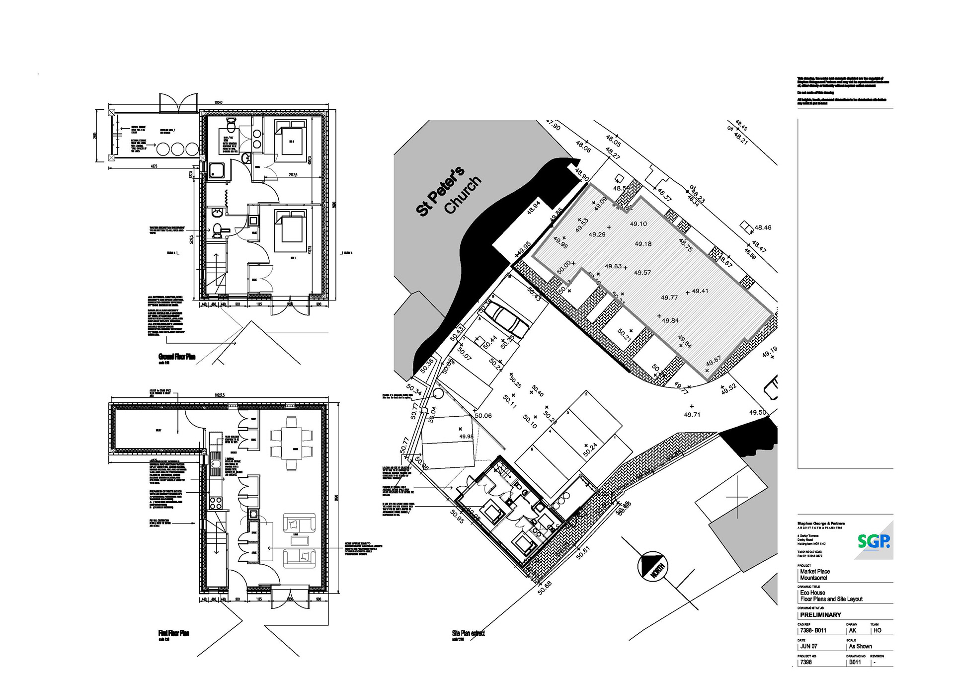
Overview : A design and build project for a private client to provide a CSH Level 6 (Zero Carbon) dwelling in the conservation area of a small village, Mountsorrel, in Leicestershire.
Design: The design involved planning detailing a two bedroom dwelling on a tight, overlooked site that adhered to and satisfied all the requirements to attain CSH Lvl 6. The design incorporated a timber frame to allow high levels of insulation and airtightness and the use of a number of local materials including Mountsorrel granite. Other technologies included in the design included photo-voltaics, Mechanical Ventilation with heat recovery and solar water heating.
Role: Concept design, Planning and Building Control submission, tender, novated to contractor, site design and coordination services, coordinating with local authority, CSH and all other related disciplines.

Back to Top